About this property

Joint Agent

JOINT AGENT FIND YOUR EDEN

A vacant semi detached house which has been converted to provide 2 x 2 bedroomed self contained flats. The property benefits from double glazing, central heating, intercom system and gardens to the front and rear.

There is also a plot of land at the side of the property. The property would be suitable for continued use as flats or potential extension or conversion to HMO, subject to gaining any necessary consents.

Listed By

Sutton Kersh - Auctions
2 Cotton Street,
Liverpool,
L3 7DY

t. 0151 207 6315
f. 0151 207 6316
auctions@suttonkersh.co.uk

Full Description

Tenure - Freehold


Situated

Fronting Stanley Road overlooking North Park close to its junction with Knowsley Road and within close proximity to local amenities, Bootle Strand shopping centre. Liverpool City Centre is approximately 5 miles away.

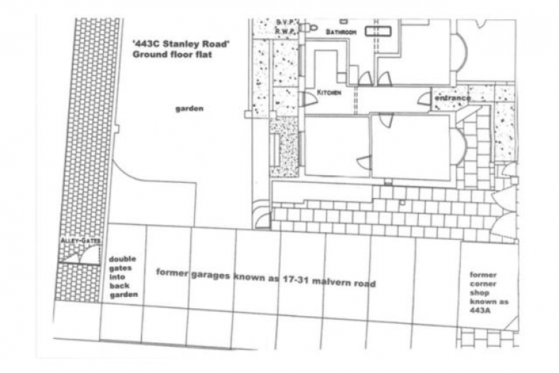
Ground Floor

Flat 443b - Hall, Living Room, Two Bedrooms, Wetroom/WC, Kitchen/Diner with access to the rear garden.
Flat 443c - Hall

First Floor

Flat 443c - Hall, Two Bedrooms, Box Room, Open Plan Kitchen/Living Room/Diner, Bathroom/WC

Outside

Rear Garden, plot of land to the side

EPC Rating

443b - D
443c - D

Council Tax Band

443b - A
443c - A

NB

Completion is to take place 10 working days after the Seller confirms the property is vacant.
If the property is not vacant within 6 months of exchange of Contracts, the Seller or Buyer
can unilaterally withdraw the Contract and neither party can pursue each other for any losses
incurred.

Photos
Interactive Map
Arrange a Viewing / Enquire

We would love to hear from you

Simply fill in and send the form and one of our consultants will get in touch with you shortly. Please note all fields marked with * must be completed.

Your information is being collected and processed by Countrywide. All information will be processed in accordance with the General Data Protection Regulation. Full details of how we process your information can be found on our website Privacy Policy. Print copies of our privacy notice are available on request. If you need to discuss how your information is being processed, please contact us at privacy@countrywide.co.uk

Viewings

We are following Government Guidelines to allow viewings to take place on vacant lots. Where possible, we will upload 360° tours or video tours and internal pictures of lots on our website and we advise that you view these before booking a viewing. We would respectfully remind all parties that strict social distancing will be applied to viewings and facemasks must be worn. You will be allocated a strict 10-minute slot, must attend alone, and wear a facemask. We do ask for your patience, it may not always be possible to accommodate everyone, but we assure you our team is working hard to keep the property market open.

* Guide Price

An indication of the seller’s current minimum acceptable price at auction. The guide price or range of guide prices is given to assist consumers in deciding whether or not to pursue a purchase. It is usual, but not always the case, that a provisional reserve range is agreed between the seller and the auctioneer at the start of marketing. As the reserve is not fixed at this stage and can be adjusted by the seller at any time up to the day of the auction in the light of interest shown during the marketing period, a guide price is issued. This guide price can be shown in the form of a minimum and maximum price range within which an acceptable sale price (reserve) would fall, or as a single price figure within 10% of which the minimum acceptable price (reserve) would fall. A guide price is different to a reserve price (see separate definition). Both the guide price and the reserve price can be subject to change up to and including the day of the auction.

* Reserve Price

The seller's minimum acceptable price at auction and the figure below which the auctioneer cannot sell. The reserve price is not disclosed and remains confidential between the seller and the auctioneer.

Both the guide price and the reserve price can be subject to change up to and including the day of the auction.

Buyer's Fee

You will also pay a Buyers Administration Charge, to the auctioneers of 1.35%+VAT of the purchase price subject to a minimum fee of £1,800 + VAT (unless otherwise stated in the property description in the catalogue or addendum).

Legal Packs

You are bidding on the basis that you have made all necessary enquiries, particularly in respect of lots the auctioneer has not inspected or had initial sight of tenancy details, and have checked the General and Special Conditions of Sale and are satisfied that you fully understand their content. Please note that some legal packs may contain additional fees (such as the requirement for the seller to pay the vendor's legal fees)

NAEA propertymark logo

ARLA propertymark logo

We are a member of the Propertymark Client Money Protection Scheme
View CMP Certificate
Conduct & Membership Rules

The Property Ombudsman logo

^M